出雲市上島町127
物件番号:26-005
- 外観は古民家風ですがキッチン、お風呂が電気の物件です。
基本情報
- 所在地
- 出雲市上島町127
- 種別
- 土地・建物
- 形態
- 売買
- 建築時期
- 宅地面積
- 361.24㎡
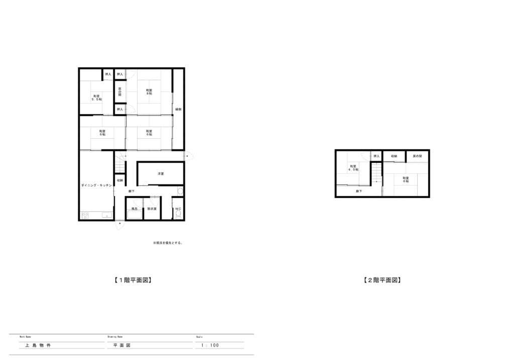
- 延床面積
- 205.02㎡
- 間取り
- 希望金額
- 100万円
- 価格交渉応じます。
- 駐車場
-
3台
- ライフライン情報
-
- 水道
- キッチン(電気)
- バス(電気)
- 出雲市駅まで車で14分。
- 仲介不動産業者(なし)
- 土地にかかる利用制限(あり)レッドゾーン
- 校区:上津小学校、第一中学校
- トイレ
- 水洗洋式
- その他
-
- 残置物があり、できれば片付けは買主で行って欲しい。
- 付帯物件として倉庫、畑があります。
情報コーナーの説明
- ご希望の物件がありましたら当センターまでご連絡ください。所有者へ連絡を行います。
- 当センターは売買・賃貸等の仲介は行いません。当事者間での交渉・契約となります。
- 宅建業者の仲介をご希望の場合は当センターまでご連絡ください。
- 情報コーナーへの掲載希望の方は当センターまでお申し込みください。











