出雲市大社町鷺浦51
物件番号:25-016
- 改修済みの古民家物件です。
基本情報
- 所在地
- 出雲市大社町鷺浦51
- 種別
- 土地・建物
- 形態
- 売買
- 建築時期
- 築100年前後(30年前に大規模改装)
- 宅地面積
- 126.9㎡
- 延床面積
- 77.91㎡(23.56坪)
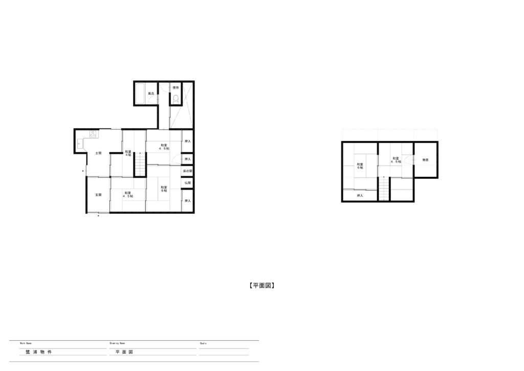
- 間取り
- 希望金額
- 150万円
- 価格応談可
- 駐車場
-
なし
- ライフライン情報
-
- 水道
- キッチン(LPガス)
- バス(LPガス)
- 一畑電車大社線出雲大社前駅まで車で20分
- 仲介不動産業者(あり)
- 土地にかかる利用制限(あり)イエローゾーン
- 校区:大社小学校、大社中学校
- トイレ
- 汲み取り洋式
- その他
-
- 約30年前に大規模改装しています。
- 付帯物件として畑(656㎡)があります。(希望があれば売買価格に含みます)
情報コーナーの説明
- ご希望の物件がありましたら当センターまでご連絡ください。所有者へ連絡を行います。
- 当センターは売買・賃貸等の仲介は行いません。当事者間での交渉・契約となります。
- 宅建業者の仲介をご希望の場合は当センターまでご連絡ください。
- 情報コーナーへの掲載希望の方は当センターまでお申し込みください。













